| 賃料 |
5.5万円 | 交通 | 羽越本線 「羽後牛島」駅 徒歩32分 バス4分 仁井田小学校入口下車 徒歩2分 |
|---|---|---|---|
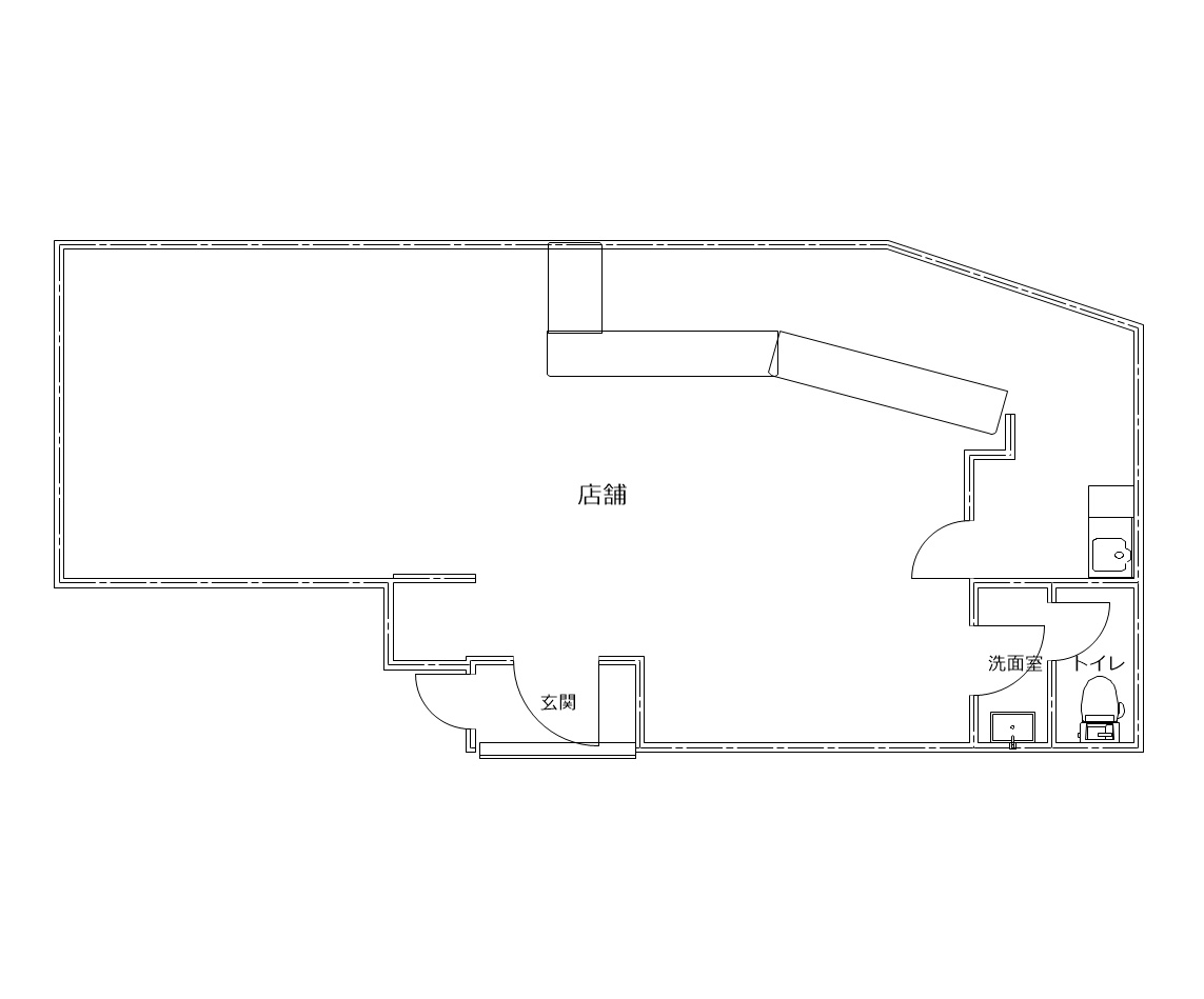
| 間取り | 1DK | 所在地 | 秋田県秋田市仁井田新田2丁目 1-19 |
| 専有面積 | 68.04㎡ | 築年月(築年数) | 1976年 4月 (築49年) |
店舗一部
| 賃料 |
5.5万円 | 交通 | 羽越本線 「羽後牛島」駅 徒歩32分 バス4分 仁井田小学校入口下車 徒歩2分 |
|---|---|---|---|
| 間取り | 1DK | 所在地 | 秋田県秋田市仁井田新田2丁目 1-19 |
| 専有面積 | 68.04㎡ | 築年月(築年数) | 1976年 4月 (築49年) |
「利回り」は、当該不動産の1年間の予定賃料収入の不動産取得対価に対する割合であり、公租公課その他当該物件を維持するために必要な費用の控除前のものです。
また、予定賃料収入が確実に得られる事を保証するものではありません。

「仁井田の貸し物件」バス停から徒歩3分以内
リフォームやリノベーション借主様負担で自由
1階、2階どちらも貸出中
※地図上の物件位置は近隣に物件が所在することを表すものであり、実際の物件所在地とは異なる場合がございます。
018-827-3022
営業時間:10:00~18:00 / 定休日:月曜日、お盆、年末年始
| 所在地 | 秋田県秋田市仁井田新田2丁目 1-19 | ||
|---|---|---|---|
| 交通 | 羽越本線 「羽後牛島」駅 徒歩32分 バス4分 仁井田小学校入口下車 徒歩2分 | ||
| 賃料 | 5.5万円 | 坪単価 | 0.27万円 |
| 管理費 | |||
| 敷金/保証金/礼金 | 2ヶ月 / 0ヶ月 / 0ヶ月 | 敷引/償却 | - / 退去時1ヶ月 |
| 雑費 | 権利金 | ||
| 所在階/階数 | / 2階建 | 建物構造 | 木造 |
| 専有面積 | 68.04㎡ | 土地面積 | |
| 築年月(築年数) | 1976年 4月(築49年) | 現況 | 空家 |
| 入居可能日 | 相談 | 契約期間 | 2年 |
| 更新料 | 0ヶ月 | 更新事務手数料 | |
| 用途地域 | 第二種低層住居専用地域 | ||
| 保険 | 保険加入義務:無 | ||
| 保証会社 | 保証加入義務:任意加入 | ||
| 駐車場 | 無 | ||
| 設備条件 | 公共下水 / 公営水道 / プロパンガス | ||
| その他条件 | |||
| 備考 | 10年後取壊し予定建物です。 | ||
| 物件番号 | 99090689 | 取引態様 | 専任媒介 |
| 情報公開日 | 2025年12月13日 | 次回更新予定日 | 2025年12月27日 |
| 取引条件の有効期限 | 2025年12月27日 | ||
| 取扱い会社 |
㈱寺沢工務店 〒010-1414 秋田県秋田市御所野元町1丁目1-14フレスポ1階 秋田県知事(7)第001621号 公益財団法人秋田県宅地建物取引業協会 |
||
018-827-3022
営業時間:10:00~18:00 / 定休日:月曜日、お盆、年末年始
| 所在地 | 物件の住所を表示。(詳細住所は表示していない場合もある) | ||
|---|---|---|---|
| 交通 | 物件(部屋)の沿線駅・バス停を表示。(複数駅・バス停の利用が可能な場合は最大3件まで) | ||
| 間取り/詳細 | 数字は居室数を表示。LDKはそれぞれ「リビング」「ダイニング」「キッチン」、S(納戸)とは「納戸」「サービスルーム」「マルチルーム」「フリールーム」など建築基準法第28条に適合していないため、居室と認められない納戸その他の部分を表す。 | ||
| 価格 | 販売されている住戸の価格を表示。仲介手数料は含まない。 | ||
| 管理費 | 共同住宅の設備その他共用部分の維持および管理をするために必要な費用を表示。 | ||
| 修繕積立金 | 共用部分の修繕のために積立てる金額を表示。 | ||

【外観】